6+kk Velké Přílepy
„Promyšlený dům v prestižní lokalitě, nabízející prostor, eleganci a kvalitu bez kompromisů.“
„Promyšlený dům v prestižní lokalitě, nabízející prostor, eleganci a kvalitu bez kompromisů.“
Tato nadstandardní novostavba s důrazem na kvalitu, prostor a promyšlené detaily se nachází v prestižní lokalitě Velké Přílepy, pouhých 12 km od centra Prahy, v klidné ulici Sportovní. Na rohovém pozemku o rozloze 964 m² vzniká domov, který kombinuje prostor, soukromí a architektonickou čistotu.
Užitná plocha 210 m², dvougaráž s přípravou na nabíjení elektromobilu a dispozice 6+kk navržená s precizním důrazem na funkčnost a komfort, společně vytvářejí prostor, kde vše dává smysl.
Dům je nabízen ve fázi Shell & Core, která umožňuje dokončení v duchu vašeho osobního stylu.
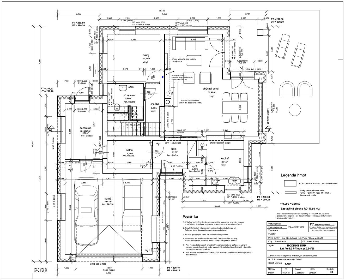
| Místnost | Plocha (m²) | Poznámka |
|---|---|---|
| Obývací pokoj | 34,5 | Hlavní obytný prostor s přímým vstupem na terasu |
| Kuchyň | 8,8 | Samostatně oddělená, propojená s obývacím prostorem |
| Spíž | 1,9 | Praktické zázemí kuchyně |
| Hala | 9,6 | Vstupní a komunikační prostor |
| Šatna | 5,7 | Úložný prostor u vstupu |
| Koupelna | 5,4 | Sprchový kout + WC |
| Pokoj | 11,5 | Ideální pro hosty / pracovnu / au-pair |
| Chodba | 4,1 | Propojení denní a technické části domu |
| Technická místnost | 5,4 | Pračka, sušička, technologie domu |
| Dvougaráž | 34,5 | Příprava na nabíjení elektromobilu |
| Terasa | ≈14 | Jižní orientace |
| Celkem 1. NP | ≈172,6 | Z toho čistá obytná plocha cca 124 m² |
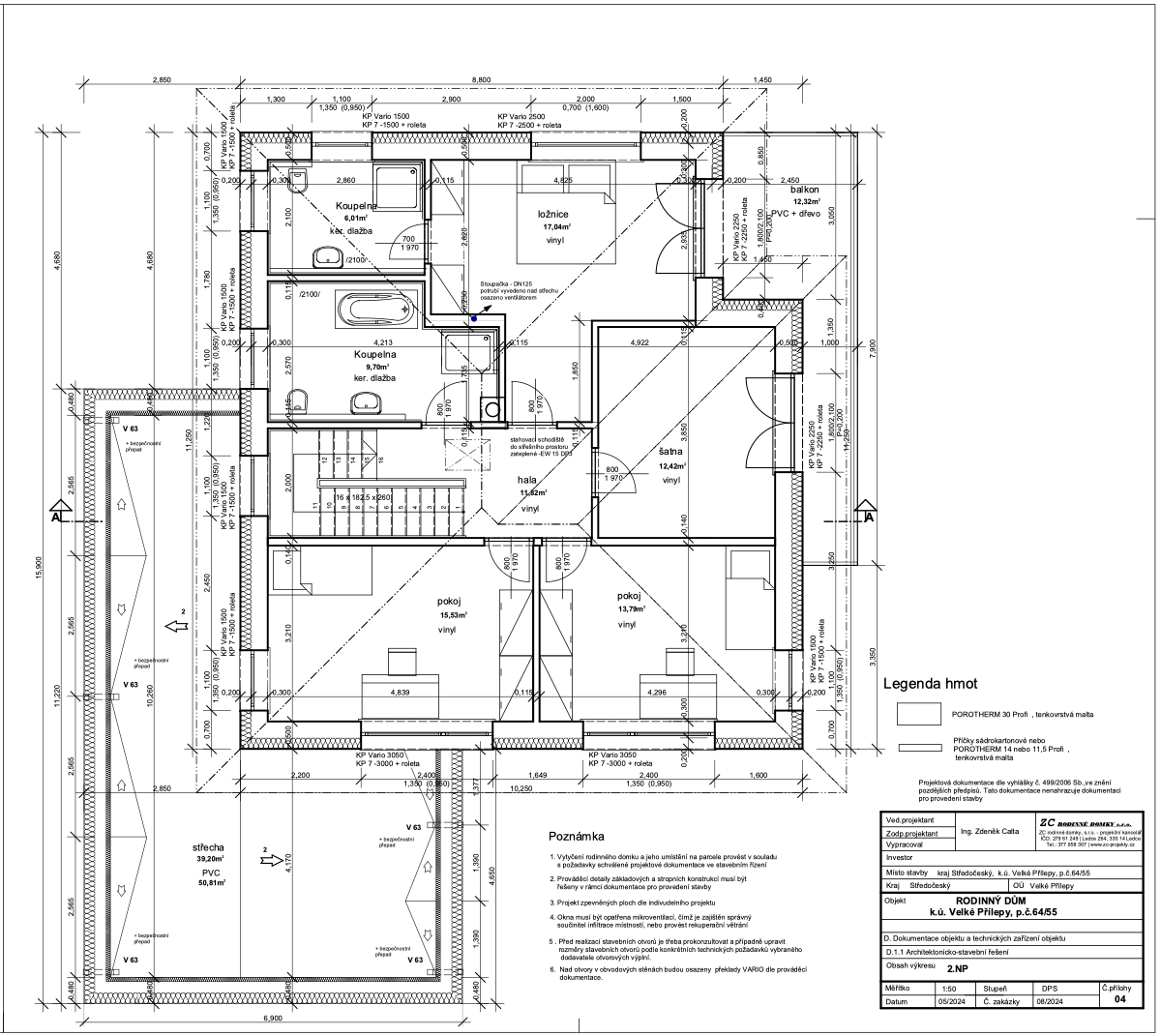
| Místnost | Plocha (m²) | Poznámka |
|---|---|---|
| Ložnice | 17,7 | Master bedroom se soukromou koupelnou a vstupem na balkon |
| Pokoj | 13,7 | Ideální dětský pokoj či pracovna |
| Pokoj | 13,7 | Dětský / hostinský pokoj |
| Šatna | 12,4 | Velkorysá šatna (lze využít i jako další pokoj) |
| Hala | 9,5 | Centrální komunikační prostor |
| Koupelna | 8,7 | Hlavní koupelna s vanou a WC |
| Koupelna (en-suite) | 3,8 | Soukromá koupelna u ložnice |
| Balkon | 7,2 | Přístup z ložnice a jednoho z pokojů |
| Terasa | 8,2 | Soukromá terasa navazující na ložnici |
| Celkem 2. NP | ≈92 | Čistá obytná plocha cca 92 m² |
Dispozice domu byla navržena tak, aby přirozeně propojila každodenní život s pocitem soukromí a klidu.
1. NP dominuje velkorysý obývací prostor s přímým vstupem na terasu, který tvoří srdce celého domu. Díky propojení s kuchyní působí otevřeně a vzdušně, přesto si zachovává příjemnou intimitu. Vedle něj se nachází samostatný pokoj, který může sloužit jako pracovna, pokoj pro hosty nebo zázemí pro au-pair. Je chytře umístěn — poskytuje klid, je oddělen od horního patra a zároveň zůstává v blízkosti hlavní obytné části, což z něj dělá ideální prostor pro práci i soukromí. Technická místnost i dvougaráž jsou průchozí přímo z domu, takže zázemí i každodenní provoz zůstávají praktické a pohodlné, aniž by narušovaly obytný prostor.
2. NP se nachází Master Bedroom s vlastní koupelnou a vstupem na balkon — prostor, který nabízí opravdové soukromí a klid. Je to místo, kde den přirozeně končí i začíná. Dětské pokoje jsou situovány na opačné straně patra, aby měl každý člen rodiny svůj prostor a klid. Součástí podlaží je i velkorysá šatna, kterou ocení každý, kdo si potrpí na pořádek, detail a eleganci.
Celek působí vyváženě a přirozeně — dům, který myslí na každodenní realitu, ale i na chvíle klidu, odpočinku a rovnováhy.
Dokončení do stavu Shell & Core
Dům bude předán v provedení Shell & Core, což znamená dokončenou stavbu s kompletní fasádou, osazenými okny a dveřmi, finálně připravenými povrchy a rozvody – tedy plně hotovou stavební konstrukci připravenou pro individuální dokončení interiéru. Tento přístup poskytuje výjimečnou flexibilitu a svobodu: nový majitel si může doladit podlahy, dveře, obklady, sanitu, kuchyni a další detaily podle svého vkusu a životního stylu. Výsledkem je unikátní domov, který je architektonicky hodnotný i osobně autentický.
Dokončení na míru
Developer nabízí možnost kompletního dokončení domu na klíč, včetně veškerých interiérových i venkovních úprav. Klient si volí materiály, barvy a standard vybavení, zatímco realizaci zajišťuje profesionální tým zodpovědný za projekt. Dům lze předat v plně hotovém stavu, připravený k okamžitému nastěhování – v jednotné estetice, bez kompromisů a bez starostí.
Současný stav projektu
Zkolaudováno

Velké Přílepy patří mezi nejvyhledávanější rezidenční lokality v okolí Prahy. Nabízí klid, prostor a moderní infrastrukturu – v obci najdete školku, školu, obchody, restaurace i sportoviště. V bezprostřední blízkosti domu vzniká nová zastávka MHD (cca 200 m od domu) a plánovaný retail park. Přímo vedle domu se nachází malý park s herními prvky pro děti, který ideálně doplňuje rodinný charakter lokality. Díky této kombinaci je každodenní život pohodlný, klidný a bez kompromisů, s rychlým dosahem do metropole.
Přímé autobusy PID zajišťují rychlé spojení na metro A: linka 350 jede přímo na Dejvickou (cca 26–27 min), linky 316 a 356 míří na Bořislavku. Autem jste v centru Prahy mimo špičku zpravidla do 15–20 min. Kombinace klidu a dostupnosti dělá z této adresy výjimečnou volbu pro náročné.

19.600.000,- Kč
(cena včetně provize a právních služeb)
Líbí se Vám, jakým způsobem pracuji? Chcete, aby i Vaše nemovitost byla prezentována na nejvyšší úrovni a prodána za co nejvyšší cenu?
Ozvěte se mi – rád pomohu i Vám.
Jsem Adam Fanta, realitní makléř, který si tuto profesi vysnil ve 14 letech na zanzibarské pláži. Svůj sen jsem si začal plnit ve 23 letech pod velkou realitní kanceláří a hned na úvod jsem dostal slušnou facku. Velmi rychle jsem byl vyveden ze svých naivních představ o tom, jak tento byznys a lidé v něm fungují. Skoro rok jsem sváděl denodenní boj sám se sebou, než došlo k prvnímu důležitému kroku mé kariéry. Našel jsem si malou realitní kancelář, kde jsem dostal svobodu dělat vše po svém.
Moje strategie byla od začátku jasná: upřímnost, nadstandardní péče o klienta a maximální nasazení. Díky tomu, a díky mým fantastickým klientům, kteří ve mně vložili důvěru, čtete tento text a já se dnes můžu prezentovat pod svou vlastní značkou
Fanta Estate Group.
Svět nemovitostí je pro mě o číslech, strategii, emocích, příbězích, lidech, vizi a kreativitě. Určitě nejsem dokonalý, dělám chyby, ale každý den se učím, abych byl lepší. Nebojím se pravdy a vždy Vám vše řeknu na rovinu, i když to nemusí být snadné slyšet.