3+kk Hornoměcholupská
"Prostor, soukromí, elegance a krásné výhledy, to vše na 107,5m2 ve 12. nadzemním podlaží"
"Prostor, soukromí, elegance a krásné výhledy, to vše na 107,5m2 ve 12. nadzemním podlaží"
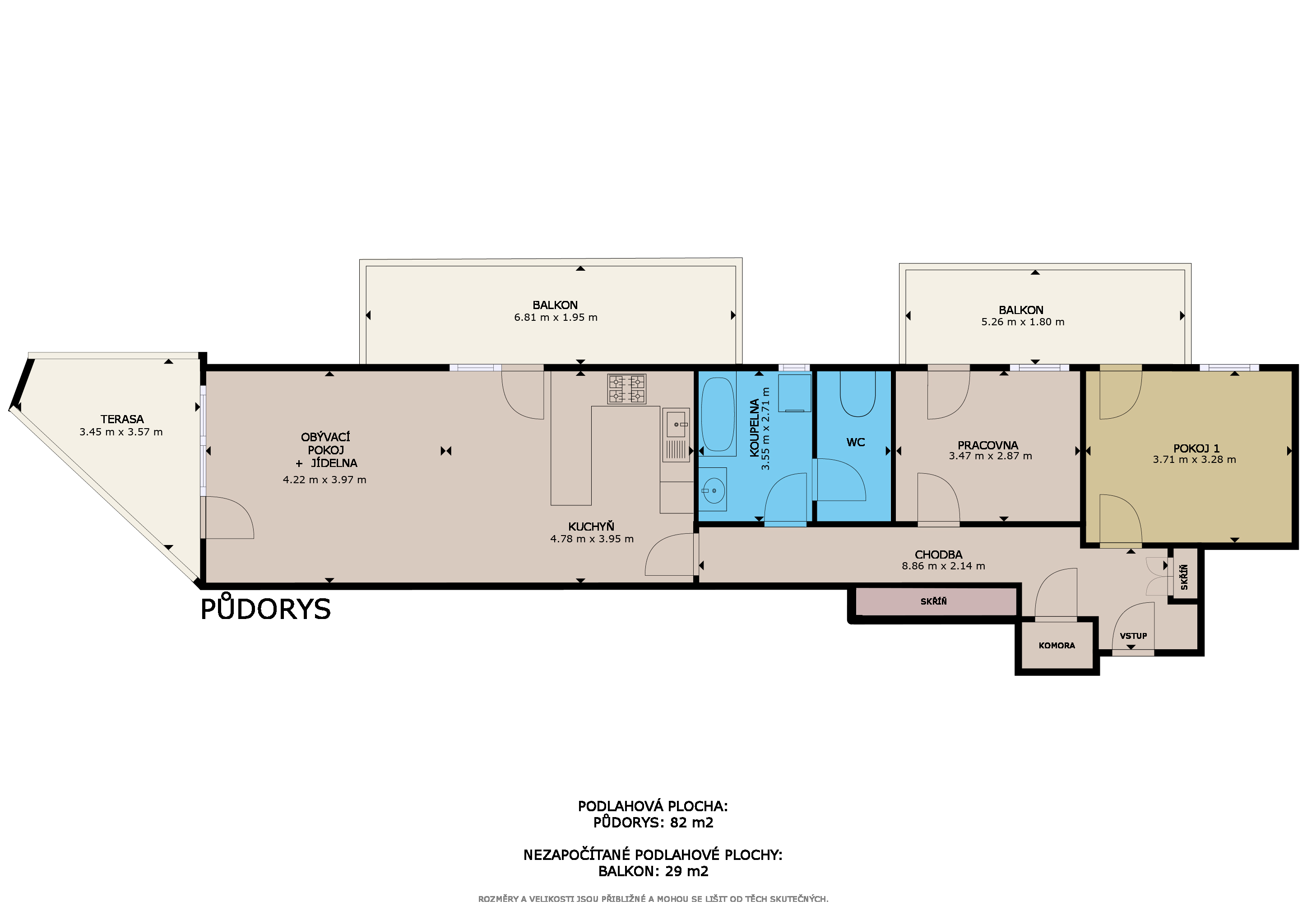
Ve dvanáctém patře moderního cihlového domu, vysoko nad městem, se nachází byt, ve kterém se žije opravdu nádherně. Byt 3+kk s užitnou plochou 81,6 m² a celkovou plochou 107,5 m² nabízí vše, co si člověk přeje – prostor, světlo, výhledy a klid, který ve městě jen tak nenajdete. Dva balkóny, zasklená lodžie, garážové stání i sklep dotvářejí komfort, který z každodenního života dělá radost.
Interiér je promyšlený do posledního detailu. Obytná část s prostorným obývacím pokojem a kuchyní tvoří srdce domova, zatímco ložnice a další pokoj zůstávají příjemně oddělené, aby poskytly dostatek klidu a soukromí. Lodžie chráněná zasklením je místem, kam si člověk rád sedne s knihou, sklenkou vína nebo notebookem.
Tento byt je ideálním domovem pro jednotlivce, mladý pár i začínající rodinu. Nabízí harmonii mezi městským životem a klidem, mezi moderním komfortem a skutečným pocitem domova. A to vše na místě, odkud je to k přírodě, službám i MHD doslova pár kroků.

Úložný prostor
Sklepní kóje 2,2 m²
Komora s policovým systémem 1,5 m²
Zatemňovací rolety
Elektrické zatemňovací rolety
Ložnice zatemněna ve 13:00
2× Balkón a 1× Zasklená lodžie


Garážové stání


Horní Měcholupy patří k oblíbeným pražským čtvrtím díky spojení klidného rezidenčního života a kompletní občanské vybavenosti. Okolí nabízí vše, co člověk potřebuje pro pohodlné bydlení – obchody, restaurace, kavárny, služby i lékaře.
Velkou předností lokality je Hostivařský lesopark a přehrada, ideální místo pro procházky, běh, cyklistiku nebo piknik v přírodě. V okolí se nachází také dětská hřiště, sportovní areály a venkovní fitness zóny.
Zastávky MHD jsou vzdálené jen pár minut chůze – autobusové linky zajišťují přímé spojení na metro C – Háje a metro A – Skalka. Nedaleko se nachází také železniční stanice Praha-Horní Měcholupy, odkud se dostanete na Masarykovo nádraží zhruba do 20 minut.
Pro řidiče je výhodou rychlé napojení na Štěrboholskou spojku, Jižní spojku a dálniční tahy D1 a D11. Díky rovinatému okolí a síti cyklostezek je pohodlné i dojíždění na kole – například do Hostivaře, Dolních Měcholup nebo na Háje.

PENB – Průkaz energetické náročnosti v kompletním znění si můžete stáhnout ZDE
12.500.000,- Kč
(cena včetně provize a právních služeb)
Líbí se Vám, jakým způsobem pracuji? Chcete, aby i Vaše nemovitost byla prezentována na nejvyšší úrovni a prodána za co nejvyšší cenu?
Ozvěte se mi – rád pomohu i Vám.
Jsem Adam Fanta, realitní makléř, který si tuto profesi vysnil ve 14 letech na zanzibarské pláži. Svůj sen jsem si začal plnit ve 23 letech pod velkou realitní kanceláří a hned na úvod jsem dostal slušnou facku. Velmi rychle jsem byl vyveden ze svých naivních představ o tom, jak tento byznys a lidé v něm fungují. Skoro rok jsem sváděl denodenní boj sám se sebou, než došlo k prvnímu důležitému kroku mé kariéry. Našel jsem si malou realitní kancelář, kde jsem dostal svobodu dělat vše po svém.
Moje strategie byla od začátku jasná: upřímnost, nadstandardní péče o klienta a maximální nasazení. Díky tomu, a díky mým fantastickým klientům, kteří ve mně vložili důvěru, čtete tento text a já se dnes můžu prezentovat pod svou vlastní značkou
Fanta Estate Group.
Svět nemovitostí je pro mě o číslech, strategii, emocích, příbězích, lidech, vizi a kreativitě. Určitě nejsem dokonalý, dělám chyby, ale každý den se učím, abych byl lepší. Nebojím se pravdy a vždy Vám vše řeknu na rovinu, i když to nemusí být snadné slyšet.